With spring right around the corner, the Josiah Smith Tavern’s restaurant operator, Boston Urban Hospitality, is working hard to finish the next step in opening The Woods later this year. The current phase involves production of construction documents – two words that belie a lot of detailed and important work. From kitchen design to fixture planning, the construction document phase forms a critical step in getting things right for Josiah Smith Tavern’s restaurant.
For those of us not schooled in architecture and real estate development, construction documents can seem like a black box – what exactly are they? Here’s a quick outline of what they are and why they are critical:
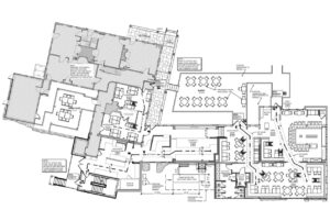
Construction documents are detailed drawings that turn a conceptual design into a precise, buildable plan for contractors. They provide detailed drawings and specifications that fully define structural systems, mechanical components, and electrical and plumbing layouts down to the smallest connection and dimension. Precision at this stage is critical for all stakeholders in the building process; nothing is left to assumption or interpretation.
By thoroughly documenting every aspect of the design, the owner’s and designer’s vision is transformed into reality. Contractors rely on these documents to accurately price the work and execute construction in accordance with the intended design. The production of construction documents is typically the most time-intensive and costly phase of the planning process, reflecting the level of coordination required.
In addition to detailing the dining room and patron areas, the construction documents will incorporate a fully developed and comprehensive kitchen layout within the constraints of a historic structure. The design must address the full range of commercial kitchen requirements including operational productivity, workflow efficiency, code compliance, and seamless service integration with front-of-house operations.
After the Construction Documents are complete, final approvals are required from Historic New England and several town boards before construction can begin. Once these approvals are secured, The Woods team will coordinate final details with their contractor, and begin construction (likely in early May 2026) with a target of opening The Woods later this year.


